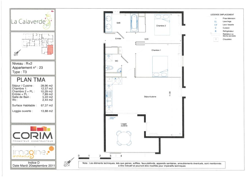
Sur le nouveau quartier de l’Ovalie, très beau T3 de 67.37 m² orienté Sud-Est, très lumineux en 2ème étage de la résidence LA CALAVERDE.
Il dispose d’une cuisine ouverte sur le séjour de 29 m², une chambre de presque 13 m² et une seconde avec placard de 10.29 m².
Les plus : une salle de bains avec double vasque, un WC séparé, une loggia de 14 m², un parking en sous sol et un cellier.
L’appartement est libre de tout occupant. Idéal FAMILLE !
Immeuble en copropriété – nombre de lots = 29
PRIX = 225 000 €












